La Casa de El Puig
El Puig, Valencia.
Localización:
Fecha:
Estado:
Superficie constuida:
Constructora:
Fotografía:
La Casa de El Puig – Arquitectura contemporánea y sostenible en Valencia
En Leon Arquitectura presentamos La Casa de El Puig, una vivienda unifamiliar ubicada en el entorno privilegiado de El Puig de Santa María, Valencia. Este proyecto encarna nuestra manera de entender la arquitectura: precisión técnica, sensibilidad mediterránea y compromiso con la sostenibilidad.
Más que una vivienda, es una respuesta consciente al lugar y a las necesidades reales de quienes la habitan.
Un diseño pensado para vivirlo
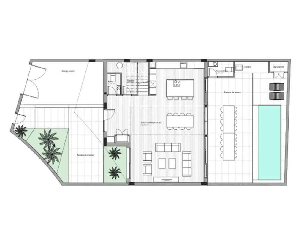
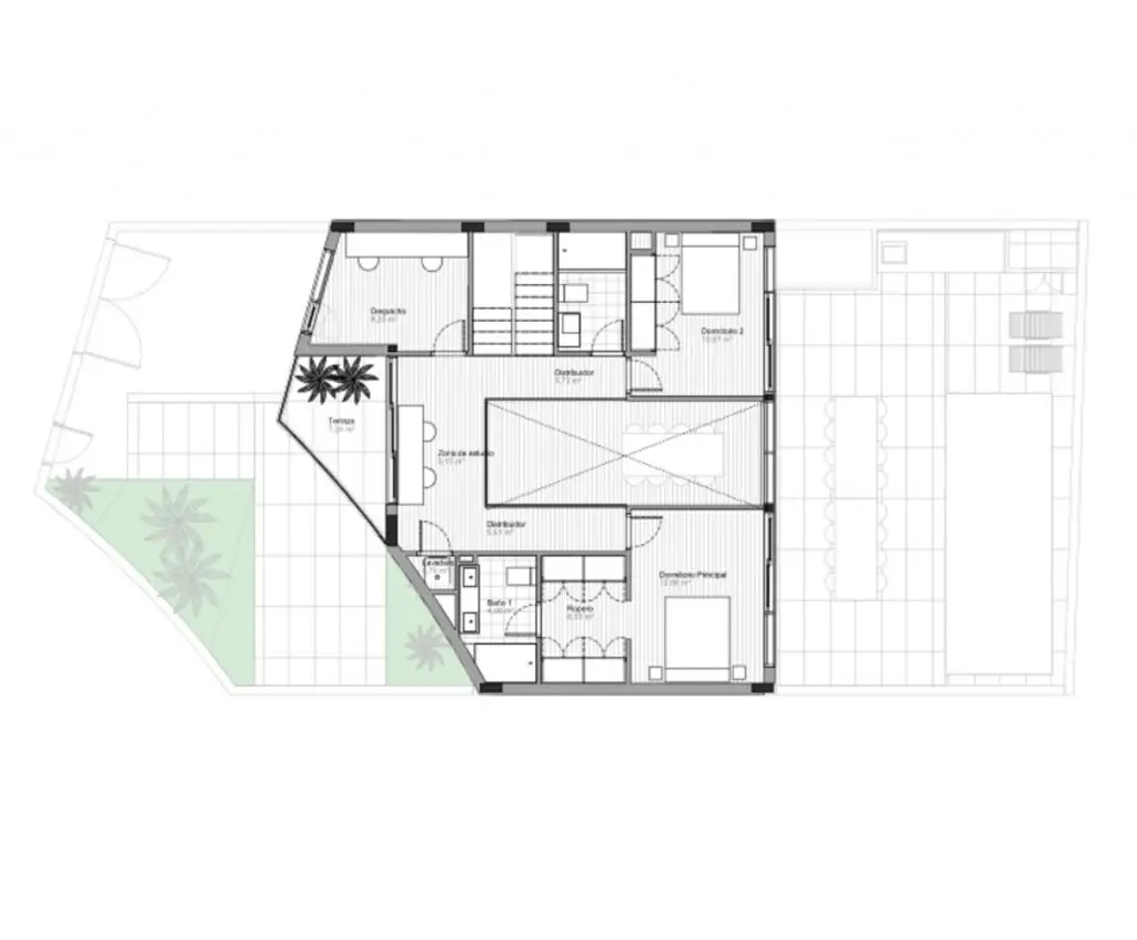
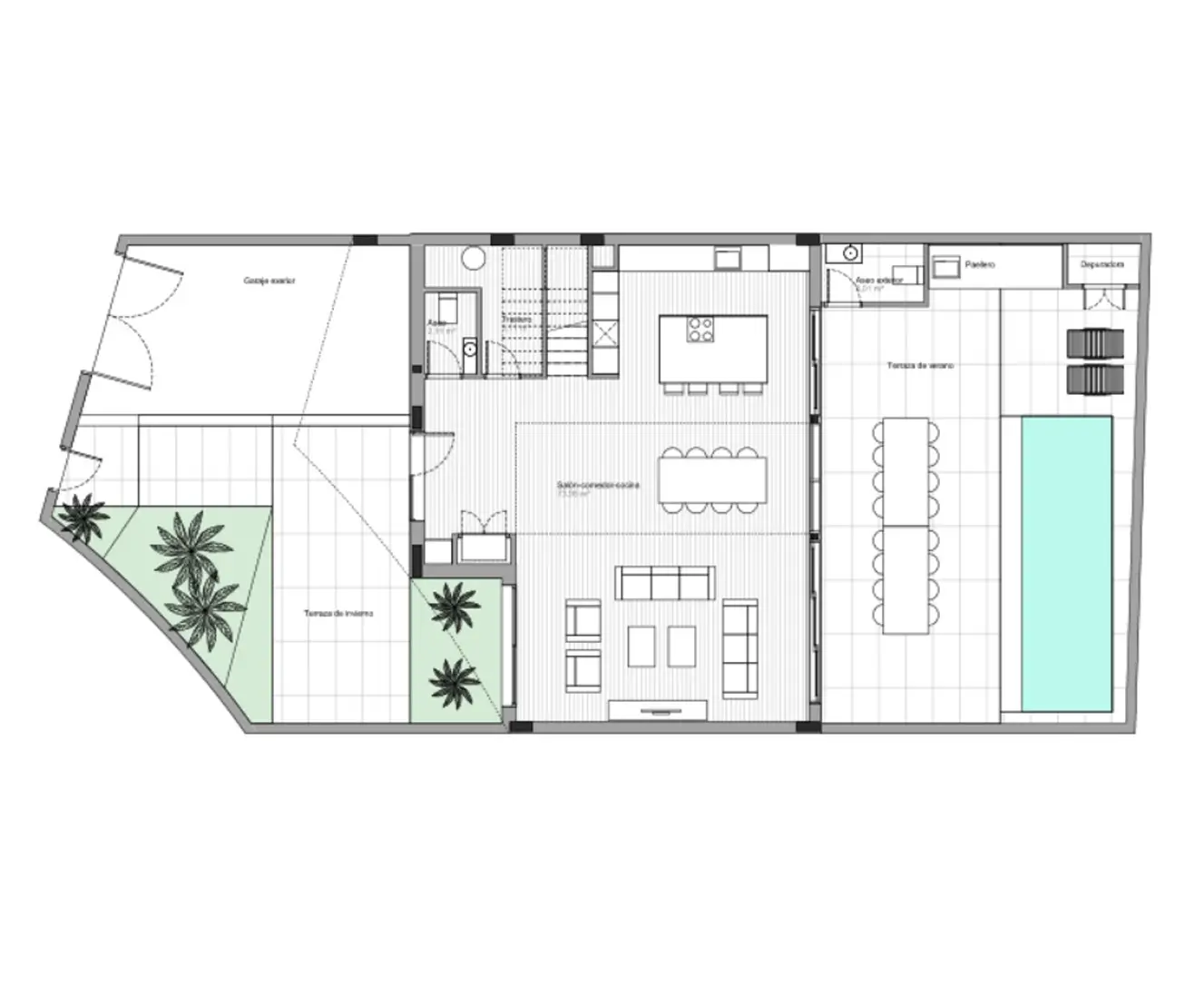
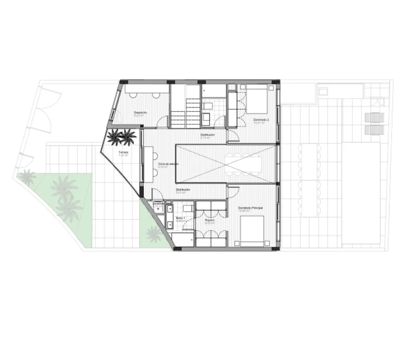
Con 188 m² distribuidos en dos plantas, La Casa de El Puig se articula en torno a una doble altura central que aporta luminosidad, amplitud y conexión visual entre niveles. La distribución se ha resuelto con claridad estructural, eliminando pilares en las zonas principales para generar espacios abiertos, funcionales y versátiles.
Cada decisión proyectual busca el equilibrio entre forma, función y eficiencia.
Claves del proyecto
-
Espacios sin obstáculos: Distribución libre de pilares centrales que favorece la flexibilidad, el confort y la continuidad espacial.
-
Sostenibilidad integrada: Materiales de bajo impacto, aislamientos naturales y carpinterías eficientes que minimizan la huella ambiental.
-
Metodología BIM: Precisión en cada fase del proceso, visualización 3D y coordinación fluida entre los equipos técnicos.
-
Climatización pasiva: Ventilación cruzada, protecciones solares y aislamiento avanzado para mejorar el confort térmico y reducir la demanda energética.
-
Diseño interior personalizado: Estancias cálidas, funcionales y atemporales, donde la estética contemporánea convive con la serenidad mediterránea.
Sostenibilidad como principio, no como añadido
La Casa de El Puig ha sido proyectada bajo los criterios de la arquitectura pasiva. Incorpora energías renovables, soluciones constructivas responsables y materiales duraderos que reducen el mantenimiento y los costes operativos.
El resultado es una vivienda eficiente, saludable y preparada para el futuro.
Nuestra forma de trabajar
En Leon Arquitectura no diseñamos casas, diseñamos hogares que responden al lugar, a las personas y al tiempo. Creemos en una arquitectura honesta, donde el diseño se alinea con la técnica, y cada proyecto es una oportunidad para construir con sentido y con alma.
¿Buscas un estudio de arquitectura en Valencia que combine diseño, sostenibilidad y precisión?
Te escuchamos. Hablemos de tu proyecto.






